Galicja-Nieruchomości.pl ma przyjemność zaprezentować:
Dom klasy Premium na sprzedaż w miejscowości Krasne o powierzchni użytkowej 272m², wybudowany w 2025 roku, usytuowany na działce o powierzchni 9,6 ar. Nieruchomość idealna dla osób wymagających – łączy komfort, nowoczesne technologie oraz niskie koszty utrzymania, w spokojnej lokalizacji z dobrym dojazdem do Rzeszowa.
Najważniejsze informacje:
- 272 m² powierzchni użytkowej,
- 5 pokoi,
- działka 9,6 ar,
- rok budowy 2025,
- standard Premium,
- dom gotowy do zamieszkania.
- Technologie:
- pompa ciepła Vaillant,
- rekuperacja,
- ogrzewanie podłogowe,
- zbiornik buforowy Joule 200L,
- stacja uzdatniania wody.
- Atuty nieruchomości:
- nowoczesna bryła i elegancka elewacja
- designerskie wnętrze z antresolą
- duże przeszklenia – świetne doświetlenie
- ogrzewanie podłogowe w całym domu
- pompa ciepła Vaillant + rekuperacja
- niskie koszty eksploatacji
- dwa duże tarasy (parter + piętro)
- garaż dwustanowiskowy
- wszystkie media doprowadzone.
- Dodatkowe informacje :
- dojazd: droga asfaltowa oraz utwardzona,
- media: woda, prąd, kanalizacja.
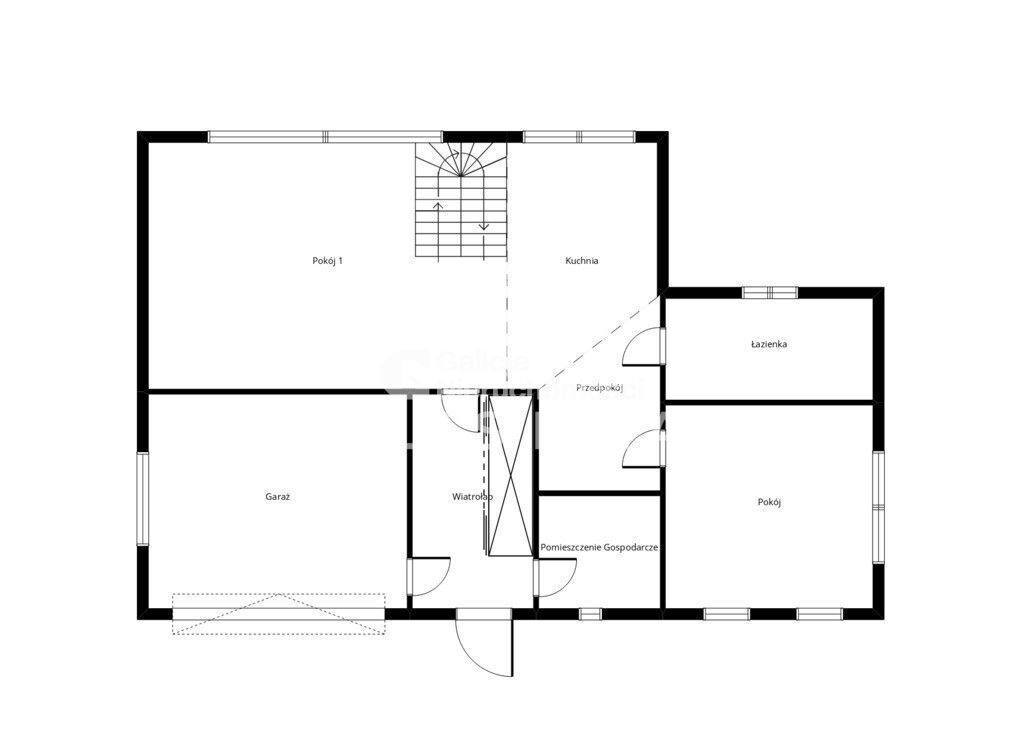
Rozkład pomieszczeń: Parter:
- przestronny salon z kuchnią i jadalnią (ok. 70m²) + duże przeszklenia,
- nowoczesna kuchnia z wyspą i pełnym AGD,
- duża sypialnia (34,2 m²),
- łazienka (13,6 m²),
- hol z garderobą,
- kotłownia,
- garaż dwustanowiskowy,
- wyjście na taras.
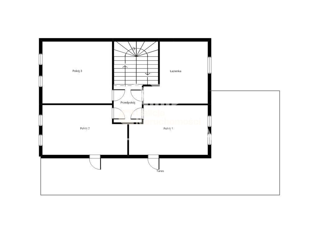
Piętro:
Jeśli są Państwo zainteresowani finansowaniem, oferujemy pomoc w uzyskaniu kredytu – kompleksowa obsługa w jednym miejscu.
Kontakt:
Agnieszka Sosnowska
Galicja-Nieruchomości.pl
ul. Rejtana 53A lok. 211, Rzeszów.
Niniejsze ogłoszenie jest wyłącznie informacją i nie stanowi oferty w rozumieniu art. 66 1 Kodeksu Cywilnego.
Opis nieruchomości został przygotowany na podstawie informacji uzyskanych od właściciela.



























