Biuro Galicja Nieruchomości prezentuje nowoczesny dom w zabudowie szeregowej, zlokalizowany w cichej i zielonej części Rzeszowa – na osiedlu Słocina.
Nieruchomość ma powierzchnię 114 m² i została zaprojektowana z myślą o komforcie i funkcjonalności codziennego życia.
Do domu przynależy działka o powierzchni 173 m² oraz garaż w bryle budynku.
Dom sprzedawany jest w stanie deweloperskim – wykończony w zakresie wszystkich instalacji wewnętrznych, z ogrzewaniem podłogowym na całej powierzchni oraz dodatkowymi grzejnikami w łazienkach.
W standardzie znajdują się również wysokiej jakości, trzyszybowe okna PCV o profilu sześciokomorowym, segmentowa brama garażowa oraz solidne drzwi zewnętrzne o podwyższonej odporności na włamanie.
Dodatkowym atutem jest przygotowanie instalacji pod montaż rolet zewnętrznych.
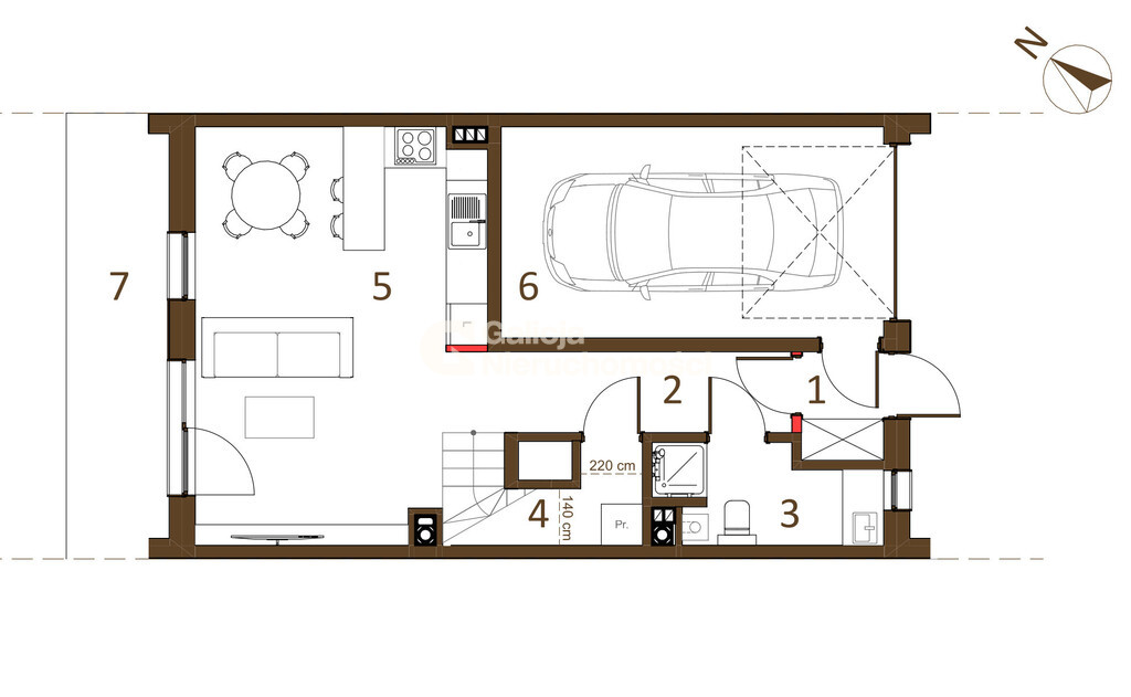
Na parterze budynku znajduje się wiatrołap, łazienka, pomieszczenie gospodarcze, hol komunikacyjny oraz przestronny salon z aneksem kuchennym i jadalnią. Z salonu prowadzi bezpośrednie wyjście na taras i do prywatnego ogródka, co stanowi idealne miejsce do wypoczynku na świeżym powietrzu. Parter uzupełnia wbudowany garaż o powierzchni ponad 17 m².
Piętro zostało funkcjonalnie zaplanowane z myślą o rodzinie – znajdują się tu cztery ustawne sypialnie, łazienka, garderoba oraz dwa przestronne balkony.
Przemyślany układ pomieszczeń pozwala na komfortowe zamieszkanie dla rodziny z dziećmi, jak również daje szerokie możliwości aranżacyjne dla przyszłych właścicieli.
Parter:
– wiatrołap 1,90m2
– komunikacja 5,95m2
– łazienka 4,18m2
– pomieszczenie gospodarcze 1,52m2
– salon z jadalnią i aneksem 23,68m2
– garaż 17,19m2
– taras 9,51m2
Piętro:
-komunikacja 9,22m2
– sypialnia 9,28m2
– sypialnia 10,69m2
– garderoba 3,05m2
– łazienka 5,51m2
– sypialnia 10,79m2
– sypialnia 8,09m2
– balkon 6,10m2
– balkon 6,10m2
Nieruchomość znajduje się w spokojnej, rozwijającej się dzielnicy, z bardzo dobrym dojazdem do centrum miasta oraz szybkim dostępem do szkół, sklepów i terenów rekreacyjnych. To idealna propozycja dla osób szukających nowoczesnego domu z ogródkiem, w kameralnym i bezpiecznym otoczeniu.
W ofercie posiadamy również inne segmenty w tej inwestycji – zapraszamy do kontaktu w celu poznania szczegółów oraz umówienia prezentacji.
Sylwia Kwiejda
Tel. 578 038 968
Agnieszka Sosnowska
Tel. 725 291 701
Galicja-Nieruchomości.pl
ul. Rejtana 53A, lokal 211
35-326 Rzeszów.
Zamieszczone na naszej stronie internetowej ogłoszenia nie stanowią oferty handlowej w rozumieniu kodeksu cywilnego a dane w nich zawarte mają charakter informacyjny i mogą podlegać aktualizacji. Opis nieruchomości został przygotowany na podstawie informacji uzyskanych od właściciela.

















