Galicja Nieruchomości | Witamy na stronie Galicja Nieruchomości!Stan Deweloperski | 160 m² | Garaż w bryle

Stan Deweloperski | 160 m² | Garaż w bryle

Biuro Galicja Nieruchomości ma przyjemność przedstawić Państwu nowoczesny dom w zabudowie szeregowej o powierzchni 160 m², położony w zielonej i spokojnej części Rzeszowa.
Nieruchomość znajduje się w doskonałej lokalizacji – tylko 5,5 km od centrum miasta (Millenium Hall) i 20 km od Lotniska w Jasionce. To idealna propozycja dla osób poszukujących komfortowej przestrzeni w otoczeniu zieleni, z szybkim dojazdem do kluczowych punktów Rzeszowa Słocina.

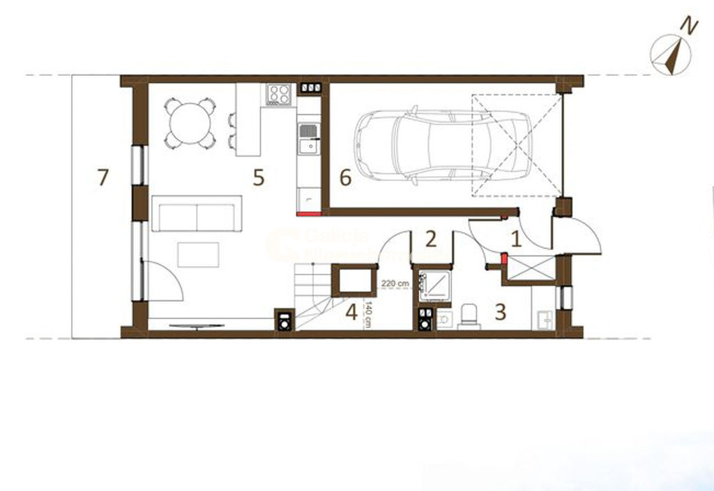
Układ pomieszczeń:
Parter:

  • Wiatrołap
  • Komunikacja
  • Łazienka
  • Pomieszczenie gospodarcze
  • Przestronny salon z jadalnią i aneksem kuchennym
  • Garaż
  • Taras

Piętro:

  • Komunikacja
  • Cztery sypialnie
  • Garderoba
  • Łazienka
  • Dwa balkony

II piętro (poddasze)

  • Komunikacja
  • Trzy sypialnie

Atuty nieruchomości:

  • Kameralna i zielona okolica
  • Szybki dojazd do centrum
  • 20 km do Lotniska w Jasionce
  • Przemyślany, funkcjonalny rozkład
  • Garaż w bryle budynku
  • Dwa balkony i taras
  • Możliwość aranżacji poddasza

Dom sprzedawany jest w stanie deweloperskim – co pozwala na wykończenie według własnych potrzeb i stylu. Nieruchomość idealna zarówno dla rodzin, jak i osób pracujących zdalnie, szukających funkcjonalnej i nowoczesnej przestrzeni.

Zachęcam do kontaktu – z przyjemnością udzielę dodatkowych informacji i umówię prezentację.

Sylwia Kwiejda

Tel. 578 038 968

Agnieszka Sosnowska

Tel. 725 291 701

Galicja-Nieruchomości.pl
ul. Rejtana 53A, lokal 211
35-326 Rzeszów.

Zamieszczone na naszej stronie internetowej ogłoszenia nie stanowią oferty handlowej w rozumieniu kodeksu cywilnego a dane w nich zawarte mają charakter informacyjny i mogą podlegać aktualizacji. Opis nieruchomości został przygotowany na podstawie informacji uzyskanych od właściciela.

Sprzedaj
nieruchomość

    Dane kontaktowe



    Chcę sprzedać



    Change Language >