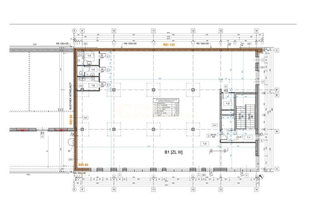
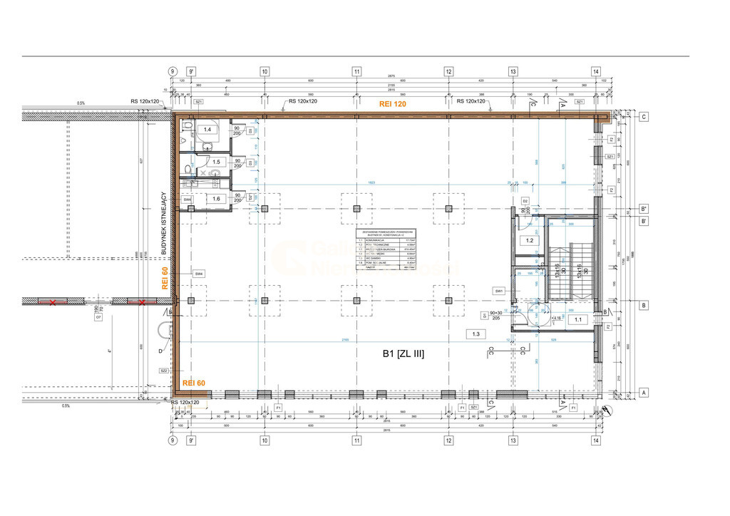
Galicja Nieruchomości ma przyjemność zaprezentować nowoczesną przestrzeń biurowo-usługową o powierzchni 240 m², zlokalizowaną w nowoczesnym obiekcie w dzielnicy przemysłowo-usługowej Rzeszowa.
Opis lokalu i możliwości adaptacyjne:
• Powierzchnia całkowita: 240m²
• Piętro: 2 (winda, szeroka reprezentacyjna klatka schodowa)
• Możliwość wydzielenia odrębnych biur
• Dostęp do lokalu w pełni przystosowany dla osób z niepełnosprawnościami
Wyposażenie i standard techniczny:
• Klimatyzacja typu split z funkcją grzania
• Wentylacja mechaniczna z rekuperacją (osobna centrala dla piętra)
• Światłowód (SkyWare)
• Telefonia VOIP z centralą Platan Libra
• Instalacja IT i strukturalna przygotowana pod każde stanowisko pracy
• Możliwość montażu fotowoltaiki i magazynów energii
• Zasilanie awaryjne – dwa niezależne przyłącza (2x40kW)
• Instalacja do ładowania pojazdów elektrycznych (do 5 stacji, każda 2x22kW AC – GARO LS4)
Media i rozliczenia:
• Ogrzewanie – z MPC z indywidualnym podlicznikiem
• Woda – MPWiK, podlicznik dla piętra
• Prąd – własny podlicznik z możliwością rozbudowy systemu zasilania
Dodatkowe udogodnienia:
• Duży, ogólnodostępny parking – możliwość wydzielenia 20 miejsc dla najemcy
• Winda o zwiększonej szerokości drzwi
• Możliwość najmu podświetlanych kasetonów reklamowych
• Elastyczne warunki najmu – możliwość aranżacji i dostosowania powierzchni do profilu działalności
Lokal idealny dla:
• Firm szukających siedziby z przestrzenią typu open space
• Pracowni projektowych i architektonicznych
• Firm technologicznych, IT, startupów
• Gabinetów specjalistycznych (psychologia, dietetyka, terapia)
• Działalności szkoleniowej i edukacyjnej
• Najemców potrzebujących niewielkiej powierzchni biurowej z dostępem do reprezentacyjnej przestrzeni wspólnej
Lokalizacja:
Rzeszów – dzielnica przemysłowo-usługowa,
• Świetna komunikacja z centrum i obwodnicą miasta
• W pobliżu przystanki komunikacji miejskiej
• Doskonała ekspozycja dla działalności usługowej i reklamowej
Warunki najmu:
• Możliwość podziału powierzchni
• Wykończenie i układ powierzchni do ustalenia z najemcą
– cena za wynajem 49 zł netto/m2
– cena za rezerwację miejsca parkingowego dla auta osobowego- 200 zł netto /szt
Zapraszamy do kontaktu w celu uzyskania dodatkowych informacji i umówienia się na prezentację.
Sylwia Kwiejda
Tel. 578 038 968
Agnieszka Sosnowska
Tel. 725 291 701
Galicja-Nieruchomości
Ul. Rejtana 53A/ lokal 211
35-326 Rzeszów.
Zamieszczone na naszej stronie internetowej ogłoszenia nie stanowią oferty handlowej w rozumieniu kodeksu cywilnego a dane w nich zawarte mają charakter informacyjny i mogą podlegać aktualizacji. Opis nieruchomości został przygotowany na podstawie informacji uzyskanych od właściciela.
















