Biuro sprzedaży Galicja Nieruchomości ma przyjemność przedstawić Państwu na sprzedaż połowę nowoczesnego domu w zabudowie bliźniaczej, wybudowanego w 2025 roku na bazie popularnego projektu ECO 25, ze zmianami wprowadzonymi przez właściciela.
Dom oferuje 88 m² powierzchni użytkowej i jest oddawany w stanie deweloperskim z pełnym uzbrojeniem:
* prąd, woda, gaz, kanalizacja miejskiej
* dodatkowo kanalizacja deszczowa
Powierzchnia domu: 88 m²
* Powierzchnia działki: 230 m²
* Rok budowy: 2025
* Stan: deweloperski
Nieruchomość posadowiona jest na działce o powierzchni 230 m², zapewniającej komfortową przestrzeń do wypoczynku i rekreacji.
Atuty nieruchomości:
* nowoczesny i funkcjonalny projekt,
* pełne media + kanalizacja deszczowa,
* własny ogródek,
* miejsce na podjazd,
* atrakcyjna, dobrze skomunikowana lokalizacja.
Układ pomieszczeń:
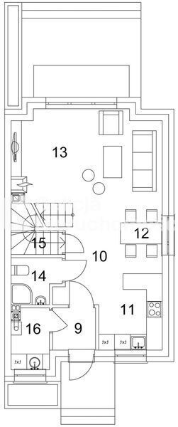
Parter 50,42m2:
* Wiatrołap – 2,56m2,
* Korytarz + schody – 7,37m2,
* Kuchnia – 7,20m2,
* Jadalnia – 6,17m2,
* Pokój dzienny – 19,34m2,
* Łazienka – 3,20m2,
* Po. gospodarcze – 1,58m2,
* Kotłownia – 3,18m2.
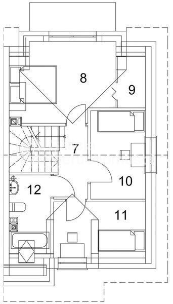
Piętro 38,25m2:
* Korytarz – 3,97m2,
* Pokój z garderobą – 18,79m2,
* Pokój z garderobą – 11,15m2,
* Łazienka 4,29m2.
Lokalizacja:
Dom znajduje się w cichej i zielonej dzielnicy Zwięczyca z doskonałą komunikacją:
* szybki dojazd do każdej części miasta,
* dogodny węzeł na trasie S19,
* w pobliżu sklepy, szkoła, przedszkole, przystanki komunikacji miejskiej.
Szukasz innych ofert ?
Skontaktuj się z nami, zaprezentujemy Ci ponad 50 innych ofert.
www.galicja-nieruchomosci.pl
Zapraszam do kontaktu:
Mateusz Potoczny
Tel. 539 917 566
Agnieszka Sosnowska
Tel. 725 291 701
Galicja Nieruchomości
Tadeusza Rejtana 53A lok.211
35-326 Rzeszów.
Zamieszczone na naszej stronie internetowej ogłoszenia nie stanowią oferty handlowej w rozumieniu kodeksu cywilnego a dane w nich zawarte mają charakter informacyjny i mogą podlegać aktualizacji. Opis nieruchomości został przygotowany na podstawie informacji uzyskanych od właściciela.





















