Galicja Nieruchomości ma przyjemność zaprezentować Państwu dom wolnostojący wykonany według projektu Nela IV o powierzchni 127.6 m², wraz z garażem dwustanowiskowym oraz budynkiem gospodarczym o powierzchni 65 m². Nieruchomość położona jest na działce o powierzchni 21 arów w spokojnej i malowniczej miejscowości Wyżne.
Miejscowość: Wyżne (gmina Czudec)
Dojazd do Rzeszowa: 25 km do centrum Rzeszowa — szybki dojazd codzienny do pracy, szkół, uczelni i usług miejskich.
Komunikacja:
- Dogodny dojazd głównymi drogami do Rzeszowa
- W pobliskim Czudcu stacja kolejowa – dodatkowa możliwość podróży pociągiem.
OPIS NIERUCHOMOŚCI:
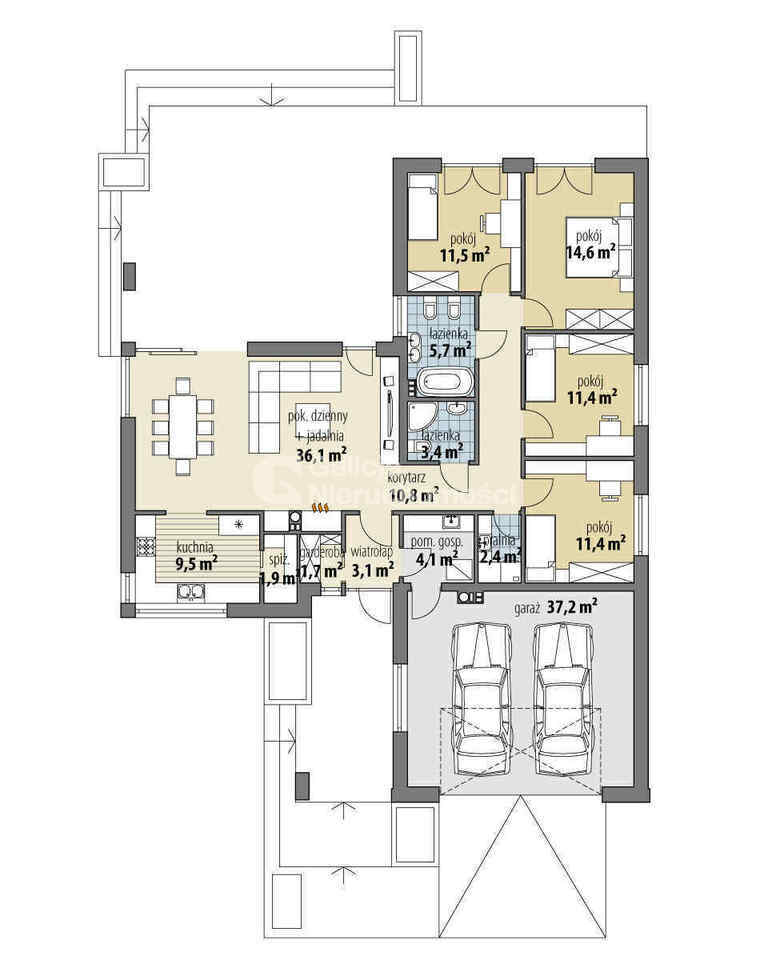
Projekt Nela IV to elegancki, parterowy dom łączący klasyczną formę z nowoczesnym wykończeniem. Idealny dla rodziny 4–6 osobowej.
- Przestronny podcień wejściowy zapewnia komfort w niepogodę.
- Przy wiatrołapie znajduje się praktyczna garderoba oraz przejście do pomieszczenia gospodarczego, z którego można wejść bezpośrednio do garażu dwustanowiskowego.
- Strefa dzienna zlokalizowana w lewym skrzydle obejmuje duży salon z jadalnią, który sprzyja wypoczynkowi.
- Kuchnia w wersji zamkniętej – z możliwością otwarcia na salon w ramach adaptacji.
- Obok kuchni umieszczono wygodną spiżarnię.
- Dopełnienie strefy dziennej stanowi osobna toaleta.
- Strefa nocna obejmuje cztery sypialnie, ogólnodostępną łazienkę oraz pralnię.
DODATKOWE ATUTY:
- Stan surowy otwarty. Brak ścian działowych – możliwość dowolnej aranżacji wnętrza według potrzeb nowego właściciela.
- Na działce znajdują się wszystkie media: gaz, prąd, woda, kanalizacja.
- Budynek gospodarczy 65 m² z poddaszem użytkowym.
- Dach pokryty nowoczesną blachodachówką Estima.
- 899 000 zł. Cena do negocjacji.
Zapraszamy do kontaktu w celu uzyskania dodatkowych informacji oraz umówienia prezentacji nieruchomości.
Ta wyjątkowa oferta to idealne połączenie funkcjonalności, przestrzeni i możliwości indywidualnej aranżacji.
Nie zwlekaj — umów się na oglądanie i poznaj potencjał tego domu!
Sylwia Kwiejda
Tel. 578 038 968
Agnieszka Sosnowska
Tel. 725 291 701
Galicja-Nieruchomości.pl
al. Rejtana 53A, lokal 211
35-326 Rzeszów.
Zamieszczone na naszej stronie internetowej ogłoszenia nie stanowią oferty handlowej w rozumieniu kodeksu cywilnego a dane w nich zawarte mają charakter informacyjny i mogą podlegać aktualizacji. Opis nieruchomości został przygotowany na podstawie informacji uzyskanych od właściciela.






















