Oferujemy Państwu do sprzedania ostatnią środkową szeregówkę zlokalizowaną na kameralnej inwestycji w Boguchwale, składającej się jedynie z 3 segmentów.
Powierzchnia całkowita domu: 85m2
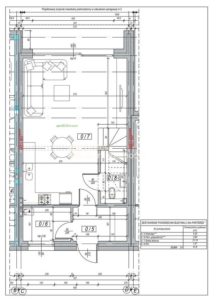
PARTER:
– wiatrołap 2.92m2
– korytarz 6.10m2
– kuchnia z jadalnią 11.56m2
– pokój dzienny 16.95m2
– pom. gospodarcze 3.95m2
– WC 2.01m2
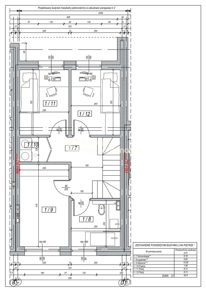
PIĘTRO:
– komunikacja 9.8m2
– pokój 9.19m2
– pokój 10.91m2
– pokój 10.07m2
– łazienka 5.58m2
Technologia budowy:
– fundamenty żelbet/bloczek szalunkowy
– ściany beton komórkowy
– strop żelbet
– dach blachodachówka
– elewacja styropian gr. 20cm
– okna PCV pakiet trzyszybowy
– rolety sterowane pilotem
Nieruchomość sprzedawana w stanie deweloperskim za cenę 600 000zł.
Termin oddania: I kwartał 2027r.
STANDARD WYKOŃCZENIA STANU DEWELOPERSKIEGO:
– tynki gipsowe
– poddasze docieplone pianą pur
– ogrzewanie podłogowe
– kocioł gazowy
– wylewki
– rolety zewnętrzne
Monika Maj,
Agnieszka Sosnowska,
Galicja Nieruchomości ul. Rejtana 53A/lokal 211 35-326 Rzeszów
Zamieszczone na naszej stronie internetowej ogłoszenia nie stanowią oferty handlowej w rozumieniu kodeksu cywilnego, a dane w nich zawarte mają charakter informacyjny i mogą podlegać aktualizacji. Opis nieruchomości został przygotowany na podstawie informacji uzyskanych od właściciela.



















