Galicja Nieruchomości | Witamy na stronie Galicja Nieruchomości!Ostatni dom w zabudowie szeregowej | Budziwój

Ostatni dom w zabudowie szeregowej | Budziwój

Biuro sprzedaży Galicja Nieruchomości ma przyjemność zaprezentować Państwu ofertę domu w zabudowie szeregowej o powierzchni 124m2 z ogrodem o wielkości 40m2. To propozycja, która łączy w sobie wygodę mieszkania w nowoczesnym domu z prywatnym ogrodem oraz wszystkie zalety życia w spokojnej i rodzinnej dzielnicy.

Dom został zaprojektowany w przemyślany sposób alby spełnić potrzeby nowoczesnej rodziny. Dzięki funkcjonalnemu układowi pomieszczeń zyskasz przestrzeń do wspólnego spędzania czasu a także strefy zapewniające prywatność każdemu domownikowi. Z kolei własny ogród stanie się idealnym miejscem do odpoczynku, zabawy z dziećmi czy organizowania letnich spotkań w gronie przyjaciół.

Budynki wzniesiono z pustaka ceramicznego co zapewnia trwałość solidność oraz wysokie parametry termoizolacyjne. Dom sprzedawany jest w stanie deweloperskim, co daje Ci pełną swobodę aranżacji wnętrz zgodnie z Twoimi potrzebami i gustem.

Lokalizacja Budziwój to dodatkowy atut tej inwestycji – to jedna z najchętniej wybieranych dzielnic przez rodziny z dziećmi. Kameralne osiedle, bliskość terenów zielonych, łatwy dostęp do szkół, przedszkoli i sklepów a jednocześnie szybkie połącznie z centrum Rzeszowa sprawiają, że to miejsce doskonale łączy spokój z wygodą codziennego życia.

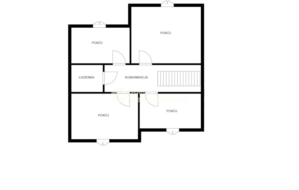
Układ pomieszczeń:
-Parter:

* wiatrołap,
* przedpokój,
* pralnia,
* gabinet,
* łazienka,
* schowek pod klatką schodową,
* salon z aneksem kuchennym.

– Piętro:
* komunikacja,
* pokój,
* pokój,
* pokój,
* pokój,
* łazienka.

– Strych:
* przestrzeń dodatkowa.

Dostępność:
Na tej inwestycji pozostał ostatni dom !!

Dodatkowe korzyści dla kupujących:
Kupując ten dom nie płacisz podatku PCC 2%, oszczędzasz kilka tysięcy złotych na starcie.

Szukasz innych ofert ?
Skontaktuj się z nami, zaprezentujemy Ci ponad 50 innych ofert.
www.galicja-nieruchomosci.pl

Zapraszam do kontaktu:

Mateusz Potoczny
Tel. 539 917 566

Agnieszka Sosnowska
Tel. 725 291 701

Galicja Nieruchomości
Tadeusza Rejtana 53A lok.211
35-326 Rzeszów.

Zamieszczone na naszej stronie internetowej ogłoszenia nie stanowią oferty handlowej w rozumieniu kodeksu cywilnego a dane w nich zawarte mają charakter informacyjny i mogą podlegać aktualizacji. Opis nieruchomości został przygotowany na podstawie informacji uzyskanych od dewelopera.

Sprzedaj
nieruchomość

    Dane kontaktowe



    Chcę sprzedać



    Change Language >