Galicja Nieruchomości prezentuje ofertę sprzedaży nowoczesnych domów jednorodzinnych w zabudowie bliźniaczej, zlokalizowanych w prestiżowej i spokojnej dzielnicy Przybyszówka w Rzeszowie. Inwestycja stanowi idealne rozwiązanie dla rodzin oraz osób szukających komfortowego miejsca do życia w bliskości natury, bez rezygnacji z dogodnego dostępu do infrastruktury miejskiej.
W najbliższym otoczeniu znajdują się szkoły, przedszkola, sklepy, punkty usługowe oraz przystanki komunikacji miejskiej. Osiedle charakteryzuje się nowoczesną architekturą, wysokim standardem wykonania oraz kameralnym klimatem.
Informacje o inwestycji:
- Typ zabudowy: bliźniak
- Powierzchnia działki: od 192 m² (możliwość wyboru większej)
- Stan: deweloperski
- Termin oddania: od IV kwartału 2026 do II kwartału 2027
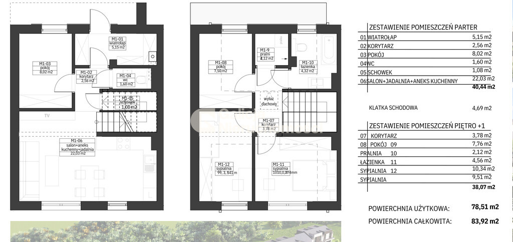
Rozkład pomieszczeń:
Parter:
- Wiatrołap – 5,15 m²
- Korytarz – 2,56 m²
- Pokój – 8,02 m²
- WC – 1,60 m²
- Schowek – 1,08 m²
- Salon z aneksem kuchennym – 22,03 m²
- Klatka schodowa – 4,69 m²
Piętro:
- Korytarz – 3,78 m²
- Pokój – 7,76 m²
- Pralnia – 2,12 m²
- Łazienka – 4,56 m²
- Sypialnia – 10,34 m²
- Sypialnia – 9,51 m²
Standard wykonania i wyposażenie:
- Ogrzewanie podłogowe na całej powierzchni
- Nowoczesny piec gazowy dwufunkcyjny (zamknięta komora spalania)
- Stolarka okienna PVC – trzyszybowa
- Drzwi stalowe ocieplane
- Instalacje wod-kan i elektryczne rozprowadzone
- Elewacja z tynkiem silikonowym, ocieplenie do 20 cm (styropian/wełna)
- Taras i podejścia wykonane z kostki brukowej
- Ogrodzenie panelowe z 4 stron
Atuty inwestycji:
- Nowoczesna i spójna architektonicznie zabudowa
- Kameralne osiedle w zielonym otoczeniu
- Utwardzona droga wewnętrzna
- Gotowe przyłącza: woda, prąd, gaz, kanalizacja
- Różne powierzchnie działek do wyboru
Lokalizacja – Przybyszówka, Rzeszów:
- Cicha i zielona okolica z zabudową jednorodzinną
- Szybki dojazd do centrum Rzeszowa
- W pobliżu: szkoły, przedszkola, sklepy, punkty usługowe, przystanki autobusowe
- Idealne miejsce dla rodzin i osób ceniących spokój oraz wygodę życia w mieście
Dostępne również większe powierzchnie działek.
Po więcej informacji oraz szczegóły oferty – prosimy o kontakt telefoniczny.
Sylwia Kwiejda
Tel. 578 038 968
Agnieszka Sosnowska
Tel. 725 291 701
Galicja-Nieruchomości.pl
Ul. Rejtana 53A/ lokal 211
35-326 Rzeszów.
Zamieszczone na naszej stronie internetowej ogłoszenia nie stanowią oferty handlowej w rozumieniu kodeksu cywilnego a dane w nich zawarte mają charakter informacyjny i mogą podlegać aktualizacji. Opis nieruchomości został przygotowany na podstawie informacji uzyskanych od właściciela.
















