Biuro sprzedaży Galicja Nieruchomości ma przyjemność zaprezentować Państwu na sprzedaż przestronne mieszkanie o powierzchni 68m2, położone na 2 piętrze z 3 w kameralnym, ceglanym bloku z lat 60. przy ulicy Hetmańskiej. To ciekawa propozycja zarówno dla rodzin, jak i inwestorów poszukujących nieruchomości z charakterem i potencjałem aranżacyjnym.
Mieszkanie jest jasne i dobrze doświetlone – ekspozycja na północ, południe i wschód sprawia że mieszkanie jest dobrze doświetlone światłem naturalnym przez cały dzień. Układ pomieszczeń daje wiele możliwości – od klasycznego trzypokojowego mieszkania po nowoczesny open space z dużą strefą dzienną.
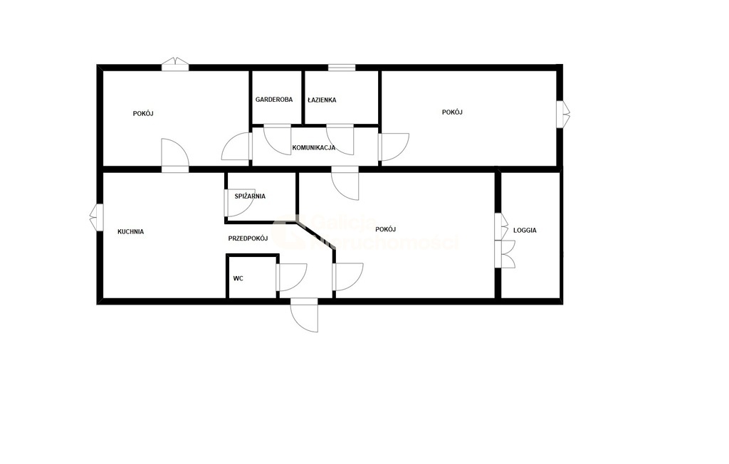
Układ pomieszczeń:
* przedpokój,
* kuchnia,
* spiżarnia,
* WC,
* pokój,
* spiżarnia,
* łazienka z oknem,
* pokój,
* pokój z wyjściem na loggie.
Lokalizacja:
Ulica Hetmańska – doskonała komunikacja, pełna infrastruktura: sklepy, szkoły, przedszkola, przystani i tereny spacerowe. Idealne miejsce dla tych, którzy chcą mieszkać blisko centrum miasta.
Dlaczego warto?
* 68m2 – idealny metraż dla rodzin lub wynajem,
* 3 strony świat – jasne wnętrza,
* cegła – solidne budownictwo, blok po termomodernizacji,
* duży potencjał do własnej aranżacji.
Szukasz innych ofert ?
Skontaktuj się z nami, zaprezentujemy Ci ponad 50 innych ofert.
www.galicja-nieruchomosci.pl
Zapraszam do kontaktu:
Mateusz Potoczny
Tel. 539 917 566
Agnieszka Sosnowska
Tel. 725 291 701
Galicja Nieruchomości
Tadeusza Rejtana 53A lok.211
35-326 Rzeszów.
Zamieszczone na naszej stronie internetowej ogłoszenia nie stanowią oferty handlowej w rozumieniu kodeksu cywilnego a dane w nich zawarte mają charakter informacyjny i mogą podlegać aktualizacji. Opis nieruchomości został przygotowany na podstawie informacji uzyskanych od właściciela.


















