Biuro sprzedaży Galicja Nieruchomości ma przyjemność przedstawić Państwu przestronne mieszkanie o powierzchni użytkowej 93,45 m2 (powierzchnia całkowita po podłodze 105 m2 ).
Mieszkanie usytuowane w kameralnej i cenionej okolicy otoczone mnóstwem zieleni przy jednoczesnej bliskości centrum miasta. Nieruchomość sprzedawana w podwyższonym stanie deweloperskim.
Mieszkanie bezczynszowe, charakteryzuje się dużym tarasem 28,66 m2, miejscem postojowym na wyłączność oraz parkingiem gościnnym.
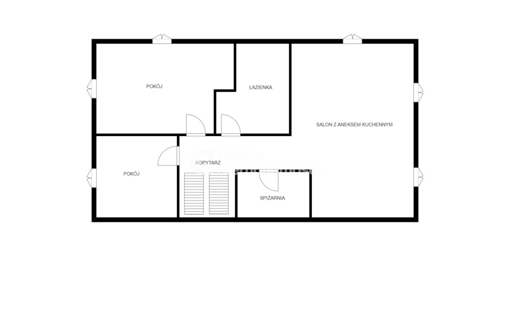
Układ pomieszczeń:
* wiatrołap 2,23 m2,
* komunikacja 3,93 m2,
* salon z aneksem kuchennym – 26 m2,
* pokój 11 m2,
* pokój 14 m2,
* łazienka 5 m2,
* garderoba lub pralnia 4 m2.
Poddasze:
* pokój z wyjściem na taras- 11 m2,
* pokój z wyjściem na taras – 13,5 m2,
* łazienka – 3,6 m2.
Atuty nieruchomości:
* Ogrzewanie podłogowe na całej powierzchni mieszkania,
* Elektroniczne sterowniki temperatury, znajdujące się w każdym pomieszczeniu,
* Instalacja internetowa i TV,
* Instalacja klimatyzacji na obydwu poziomach,
* Ogrzewanie piecykiem gazowym kondensacyjnym dwufunkcyjnym.
LOKALIZACJA:
Dzielnica Biała, w której znajduje się mieszkanie, to spokojna i atrakcyjna część miasta, idealna dla rodzin oraz osób poszukujących wygodnej lokalizacji z pełną infrastrukturą potrzebną do codziennego życia. W okolicy znajdują się sklepy, restauracje, kawiarnie oraz inne punkty usługowe, które zapewniają wygodę mieszkańcom. Dodatkowo, bliskość placówek edukacyjnych i przedszkoli sprawia, że jest to idealne miejsce dla rodzin z dziećmi.
Szukasz innych ofert ? Nie czekaj !
Skontaktuj się z nami, zaprezentujemy Ci ponad 50 innych ofert.
www.galicja-nieruchomosci.pl
☛ PRZY ZAKUPIE NIERUCHOMOŚCI OFERUJEMY RABAT 10% W LEROY MERLIN + KARTĘ PODARUNKOWĄ 50 ZŁ.
☛ NASI KLIENCI OTRZYMUJĄ KARTĘ RABATOWĄ MEBLEX UPRAWNIAJĄCĄ DO ZNIŻKI 10% NA CAŁY ASORTYMENT.
☛ NASI DORADCY KREDYTOWI POMAGAJĄ W UZYSKANIU FINANSOWANIA NA ZAKUP WYBRANEJ PRZEZ PAŃSTWA NIERUCHOMOŚCI.
☛ POMAGAMY W ORGANIZACJI ŚWIADECTW CHARAKTERYSTYKI ENERGETYCZNEJ.
☛ POMAGAMY W UZYSKANIU DOFINANSOWAŃ Z UNII EUROPEJSKIJ.
_______________________________________________________________
Zapraszam do kontaktu:
Beata Cieszyńska-Kraus
Tel. 574 168 766
Agnieszka Sosnowska
Tel. 725 291 701
Galicja Nieruchomości
Al. Tadeusza Rejtana 53A, lok 211
35-326 Rzeszów
Zamieszczone na naszej stronie internetowej ogłoszenia nie stanowią oferty handlowej w rozumieniu kodeksu cywilnego a dane w nich zawarte mają charakter informacyjny i mogą podlegać aktualizacji. Opis nieruchomości został przygotowany na podstawie informacji uzyskanych od właściciela.

























