Biuro sprzedaży Galicja-Nieruchomości prezentuje na sprzedaż nowoczesny segment środkowy w zabudowie szeregowej, położony na zamkniętym osiedlu. Nieruchomość zlokalizowana pomiędzy Budziwojem a Drabinianką, z łatwym dostępem do centrum
Powierzchnia całkowita 150 a użytkowa: 117,49 m²
Działka: ok. 1,5ara i w tym – działki 9m tarasu . (Możliwość wyboru segmentu środkowego lub skrajnego).
Stan: deweloperski Premium (oddanie: marzec 2025)
Standard deweloperski Premium obejmuje:
- instalacje: elektryczna, wodno-kanalizacyjna, C.O., gazowa, TV, internet światłowód, alarmowa, podejście pod kominek,
- ogrzewanie podłogowe (parter + piętro) + kocioł gazowy kondensacyjny dwufunkcyjny,
- tynki wewnętrzne gipsowe, wylewki maszynowe,
- poddasze ocieplone pianką PUR z płytą karton-gips,
- ścianki działowe z pustaka ceramicznego,
- ogrodzenie od strony ogródka,
- podjazd, chodniki i taras z kostki betonowej (grafit/szary),
- elewacja ocieplona styropianem 20 cm + tynk (biały/kość słoniowa) + deska elewacyjna (piaskowa),
- parapety grafitowe, balustrady szklane, oświetlenie podjazdu na czujnik ruchu.
Możliwość rozszerzenia standardu o klimatyzację, centralny odkurzacz oraz wykończenie pod klucz.
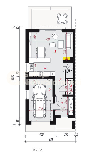
Rozkład pomieszczeń:
PARTER 58.62 m2
PODDASZE 58.87 m2
Cena: 755 930 zł. (stan deweloperski Premium)
Kontakt: Agnieszka Sosnowska
tel. 725 291 701
Galicja Nieruchomości
Al. Tadeusza Rejtana 53A lok. 211
35-326 Rzeszów


















