Biuro sprzedaży Galicja Nieruchomości ma przyjemność przedstawić Państwu dom parterowy o łącznej powierzchni około 148m2. Nieruchomość wybudowana na bazie projektu domu S-GL 289 Gustaw odbicie lustrzane i usytuowana na działce 9,5 ar. Dom sprzedawany w stanie surowym otwartym z przyłączonymi wszystkimi mediami.
Dom w całości podpiwniczony co zwiększa jego potencjał i funkcjonalność. Ściany zewnętrzne piwnicy oraz stropy wykonane z żelbetonu. Fundamenty domu ocieplone pianą PUR co zapewnia wysoką jakość izolacji termicznej i hydrologicznej, wykonany został również drenaż odprowadzający wodę deszczową i gruntową.
Dom wybudowany z pustaka suporex’a przykryty blachodachówką firmy BRATEX. Wjazd na działkę bezpośrednio z drogi główne, podjazd utwardzony.
MEDIA:
☛ gaz doprowadzony do domu,
☛ kanalizacja,,
☛ woda z sieci,
☛ prąd.
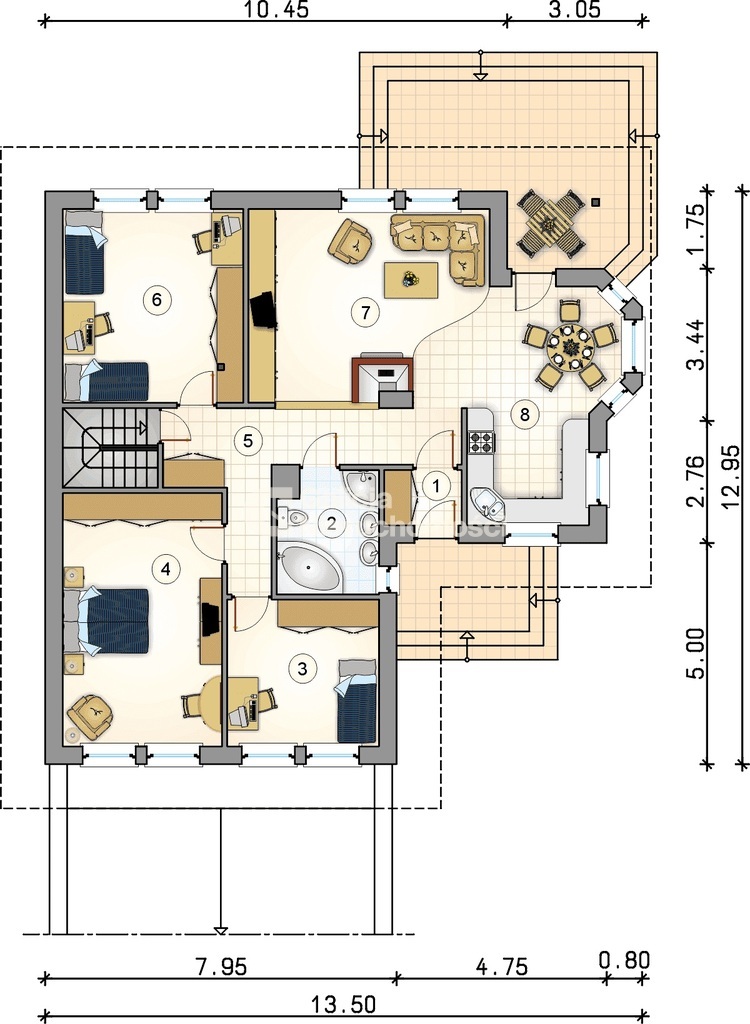
Układ pomieszczeń:
☛ PIWNICA:
* garaż dwustanowiskowy,
* kotłownia,
* pomieszczenie około 45m2, które można zaaranżować na biuro, mini apartament lub kolejne stanowisko garażowe.
☛ PARTER:
* wiatrołap,
* kuchnia z jadalnią,
* pokój dzienny,
* łazienka,
* pokój,
* pokój,
* pokój.
Lokalizacja:
Dom zlokalizowany w Gminie Świlcza, miejscowość Dąbrowa. Lokalizacja oferuje łatwy dojazd do większych miast drogą krajową nr 94.
– Rzeszów – 13km.
– Sędziszów Małopolski – 8km.
Szukasz innych ofert ? Nie czekaj !
Skontaktuj się z nami, zaprezentujemy Ci ponad 50 innych ofert.
www.galicja-nieruchomosci.pl
☛ PRZY ZAKUPIE NIERUCHOMOŚCI OFERUJEMY RABAT 10% W LEROY MERLIN + KARTĘ PODARUNKOWĄ 50 ZŁ.
☛ NASI KLIENCI OTRZYMUJĄ KARTĘ RABATOWĄ MEBLEX UPRAWNIAJĄCĄ DO ZNIŻKI 10% NA CAŁY ASORTYMENT.
☛ NASI DORADCY KREDYTOWI POMAGAJĄ W UZYSKANIU FINANSOWANIA NA ZAKUP WYBRANEJ PRZEZ PAŃSTWA NIERUCHOMOŚCI.
☛ POMAGAMY W ORGANIZACJI ŚWIADECTW CHARAKTERYSTYKI ENERGETYCZNEJ.
☛ POMAGAMY W UZYSKANIU DOFINANSOWAŃ Z UNII EUROPEJSKIJ.
_______________________________________________________________
Zapraszam do kontaktu:
Mateusz Potoczny
Tel. 539 917 566
Agnieszka Sosnowska
Tel. 725 291 701
Galicja Nieruchomości
Ul. Sikorskiego 489A
35-304 Rzeszów
Zamieszczone na naszej stronie internetowej ogłoszenia nie stanowią oferty handlowej w rozumieniu kodeksu cywilnego a dane w nich zawarte mają charakter informacyjny i mogą podlegać aktualizacji. Opis nieruchomości został przygotowany na podstawie informacji uzyskanych od właściciela.


































