Biuro sprzedaży Galicja Nieruchomości ma przyjemność zaprezentować Państwu na sprzedaż wolnostojący dom o powierzchni 149,78m2, usytuowany na działce o powierzchni 800m2, w dobrze skomunikowanej miejscowości Krasne. Dom wybudowany według projektu „Dom przy Alabastrowej 50” (odbicie lustrzane), charakteryzuje się nowoczesnym i funkcjonalnym układem pomieszczeń, idealnym dla rodzin ceniących przestrzeń i komfort.
* Powierzchnia całkowite domu: 149,78m2
* Powierzchnia użytkowa domu 124m2
* Powierzchnia działki: 800m2.
* Stan: surowy otwarty
* Media: woda, kanalizacja i prąd doprowadzone do domu. Gaz przy drodze z możliwością podpięcia.
* Projekt domu: „Dom przy Alabastrowej 50” odbicie lustrzane.
Lokalizacja:
Dom położony jest w doskonałej lokalizacji z szybkim i wygodnym dojazdem zarówno do centrum Rzeszowa (ok. 10km), jak i centrum Łańcuta (ok. 12km). Okolica oferuje pełen dostęp do infrastruktury: szkoły, przedszkola, sklepy, punkty usługowe oraz tereny rekreacyjne.
Stan techniczny:
Dom sprzedawany jest w stanie surowym otwartym. Konstrukcja wykonana z wysokiej jakości materiałów, solidne fundamenty i dach. Doprowadzone zostały już media: woda, kanalizacja i prąd.
Układ pomieszczeń (zgodnie z projektem)
Parter:
* Wiatrołap – 4,93 m².
* Hall – 4,92 m².
* Pokój – 9,15 m².
* Kuchnia – 9,61 m².
* Pokój dzienny – 20,12 m².
* Łazienka – 4,71 m².
* Pomieszczenie gospodarcze – 1,80 m².
* Kotłownia – 5,37 m².
* Garaż jednostanowiskowy – 17,97 m².
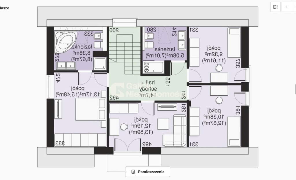
Piętro:
* Hall + schody – 14,70 m².
* Pokój – 12,19 m².
* Pokój – 10,38 m².
* Pokój – 9,32 m².
* Łazienka – 5,08 m².
* Łazienka – 6,36 m².
* Pokój – 13,17 m².
Dodatkowe informacje:
* Możliwość własnej aranżacji wnętrz.
* Działka o regularnym kształcie, idealna pod ogród lub strefę wypoczynku.
* Spokojna okolica z niską zabudową jednorodzinną.
Skontaktuj się, by umówić się na prezentację i poznać wszystkie możliwości tego miejsca.
Piotr Gąsior
Tel. 575 333 769
Agnieszka Sosnowska
Tel. 725 291 701
Galicja Nieruchomości
Al. Tadeusza Rejtana 53A, lok 211
35 – 326 Rzeszów
Zamieszczone na naszej stronie internetowej ogłoszenia nie stanowią oferty handlowej w rozumieniu kodeksu cywilnego a dane w nich zawarte mają charakter informacyjny i mogą podlegać aktualizacji. Opis nieruchomości został przygotowany na podstawie informacji uzyskanych od właściciela.

















