Biuro sprzedaży Galicja Nieruchomości ma przyjemność przedstawić Państwu ofertę sprzedaży domu wolnostojącego o pow. 144,33 m² na 6 ar działce. Dom zlokalizowany jest zaledwie kilka kilometrów od Rzeszowa w malowniczej miejscowości Kielnarowa. Dom budowany według projektu „Dom w malinówkach 23G” z drobnymi zmianami z wysokiej jakości materiałów.
To idealna propozycja dla osób, które szukają spokojnego i zielonego miejsca do życia z szybkim dojazdem do centrum Rzeszowa.
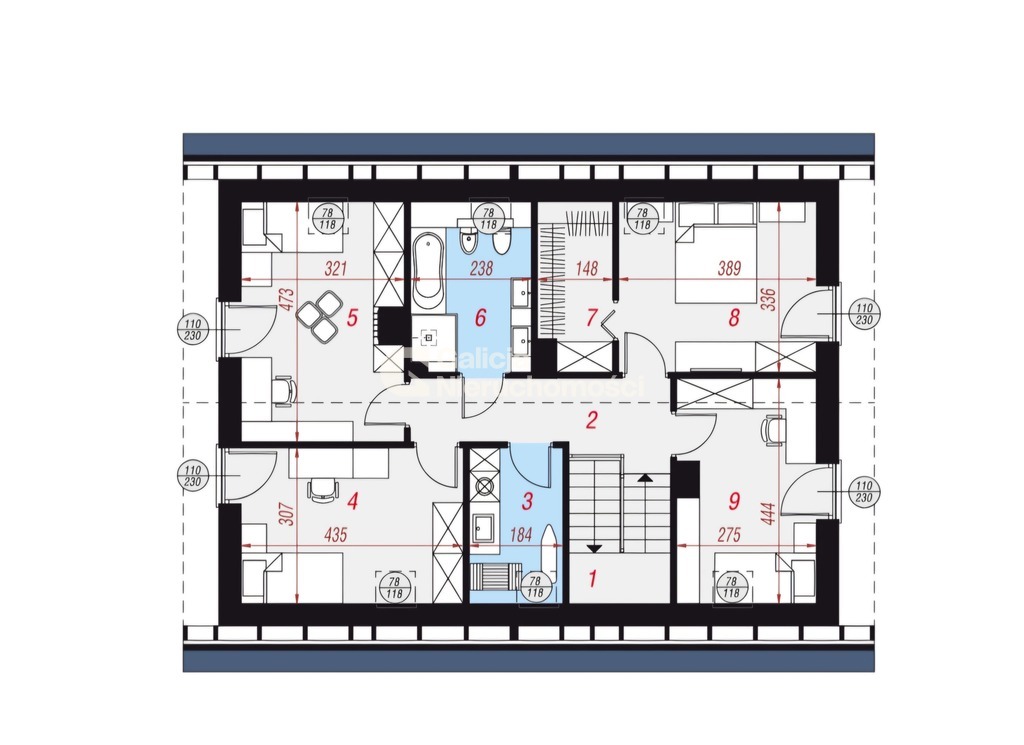
CHARAKTERYSTYKA NIERUCHOMOŚCI :
PARTER : 77,55 m²
1. Wiatrołap 5,43 m²
2. Salon 25,47 m²
3. Kuchnia 8,26 m²
4. Spiżarnia 2,47 m²
5. Pokój 8,81 m²
6. Łazienka 2,83 m²
7. Kotłownia 6,09 m²
8. Garaż 18,19 m²
PODDASZE: 66,78 m²
1. Schody 5,49 m²
2. Korytarz 7,15 m²
3. Pralnia 4,03 m²
4. Pokój 9,70 m²
5. Pokój 11,98 m²
6. Łazienka 5,86 m²
7. Garderoba 3,39 m²
8. Pokój 9,74 m²
9. Pokój 9,44 m²
STAN SUROWY ZAMKNIĘTY:
- wykonanie płyty fundamentowej „ciepłej” (10 cm styrodur pod płytą) brak mostków termicznych od gruntu
- ściany z gazobetonu najwyższej klasy Ytong
- Projekt rekuperacji (WENTYLACJA MECHANICZNA)
- teren utwardzony ( tłuczeń )
- dach pokryty blachodachówką
- strop płyta żelbetowa
- schody żelbetowe
- elewacja zewnętrzna, ocieplenie styropian 20 cm, tynk silikonowy
- segmentowa brama garażowa
- okna 3 szybowe najwyższej klasy – kolor antracyt (od zewnątrz)
- w salonie drzwi przesuwne tarasowe HST
- drzwi wejściowe
Cena: 659 000 zł
Istnieje możliwość wykończenia domu do stanu deweloperskiego za dopłatą około 150 000 zł
STAN DEWELOPERSKI:
- pompa ciepła powietrze-woda
- rekuperacja z wymiennikiem
- instalacja fotowoltaiczna
- tynki wewnętrzne
- wylewki
- instalacje wod kan
- ogrzewanie podłogowe
- instalacje elektryczna
- ocieplenie poddasza (piana pur)
- kostka na zewnątrz
Istnieje także możliwość zakupu domu na działce obok (6,5 ar) w stanie surowym otwartym w cenie 539 000 zł
STAN SUROWY OTWARTY:
- wykonanie płyty fundamentowej „ciepłej” (10 cm styrodur pod płytą) brak mostków termicznych od gruntu
- ściany z gazobetonu najwyższej klasy Ytong
- dach pokryty blachodachówką
- strop płyta żelbetowa
- schody żelbetowe
LOKALIZACJA:
Dom położony w miejscowości Kielnarowa oddalonej kilka km od granic Rzeszowa.
W pobliżu niska zabudowa domów jednorodzinnych.
Cicha i spokojna okolica wokół dużo zieleni.
9,9 km do Galeri PLAZA oraz E.Leclerc
Sklep ok 1,5 km
Zapraszam do kontaktu:
Szukasz innych ofert ? Nie czekaj !
Skontaktuj się z nami, zaprezentujemy Ci ponad 50 innych ofert.
www.galicja-nieruchomosci.pl
Zapraszam do kontaktu:
Beata Cieszyńska-Kraus
Tel. 574 168 766
Agnieszka Sosnowska
Tel. 725 291 701
Galicja Nieruchomości
Ul. Rejtana 53 A, lok. 211
35-326 Rzeszów
Zamieszczone na naszej stronie internetowej ogłoszenia nie stanowią oferty handlowej w rozumieniu kodeksu cywilnego a dane w nich zawarte mają charakter informacyjny i mogą podlegać aktualizacji. Opis nieruchomości został przygotowany na podstawie informacji uzyskanych od właściciela.


















