Szukasz domu, który nie jest budowany po kosztach, tylko z myślą o trwałości na lata? Ta nieruchomość zdecydowanie zasługuje na uwagę.
Biuro sprzedaży Galicja Nieruchomości ma przyjemność zaprezentować Państwu na sprzedaż dom wolnostojący o powierzchni 185m2, realizowany według projektu „Dom w Balsamowcach 15”, położony w miejscowości Białobrzegi (powiat łańcucki).
Duża działka 12,34 ara, spokojna okolica oraz bardzo szybki dojazd do Rzeszowa autostradą A4 oraz do Łańcuta.
Parametry:
* Powierzchnia: 185m2.
* Działka: 12 arów w kształcie prostokąta.
* Stan: surowy otwarty.
* Rok budowy: 2025.
Układ pomieszczeń:
Parter:
* wiatrołap,
* garderoba,
* hol,
* łazienka,
* salon + jadalnia,
* kuchnia,
* pokój,
* spiżarnia,
* kotłowania,
* garaż.
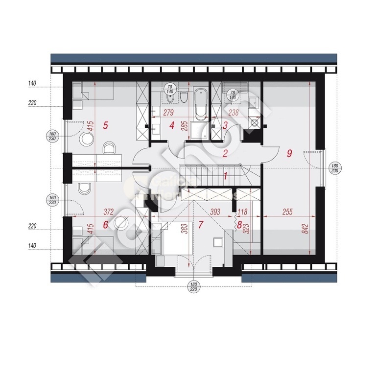
Poddasze:
* schody,
* hol,
* pralnia,
* łazienka,
* pokój,
* pokój,
* pokój z garderobą,
* pokój.
Technologia budowy = solidność i trwałość
* ściany z pustaka ceramicznego,
* fundamenty zabezpieczone dwuskładnikową masą bitumiczną Rammers (4 mm),
* strop i schody żelbetowe,
* dach pełne deskowanie,
* pokrycie dachu blachodachówka Bratex Allano,
* chudziak wzmocniony siatką zbrojeniową 6 mm,
* zrobiona wycena okien na 30 tyś.
To solidna baza pod dalsze wykończenie bez oszczędzania na konstrukcji.
Media:
* woda w budynku,
* kanalizacja w budynku,
* prąd planowany przyłączenie IV kwartał 2026 r.
* gaz planowane przyłączenie IV kwartał 2026r.
Lokalizacja – Białobrzegi, powiat łańcucki.
* szybki dojazd do Rzeszowa autostradą A4,
* kilka minut do Łańcuta,
* spokojna, rozwijająca się okolica,
* idealne miejsce dla osób szukających przestrzeni i jednocześnie dobrego połączenia z miastem.
Szukasz innych ofert ?
Skontaktuj się z nami, zaprezentujemy Ci ponad 50 innych ofert.
www.galicja-nieruchomosci.pl
Zapraszam do kontaktu:
Mateusz Potoczny
Tel. 539 917 566
Agnieszka Sosnowska
Tel. 725 291 701
Galicja Nieruchomości
Tadeusza Rejtana 53A lok.211
35-326 Rzeszów.
Zamieszczone na naszej stronie internetowej ogłoszenia nie stanowią oferty handlowej w rozumieniu kodeksu cywilnego a dane w nich zawarte mają charakter informacyjny i mogą podlegać aktualizacji. Opis nieruchomości został przygotowany na podstawie informacji uzyskanych od właściciela.






















